Home
News
QS Services
Contractors
Architects and Clients
Developers and Investors
Clients
Projects
Contact
+44(0)7947 524 525
|
qs@rossbaillie.co.uk
Home
News
QS Services
Contractors
Architects and Clients
Developers and Investors
Clients
Projects
Contact
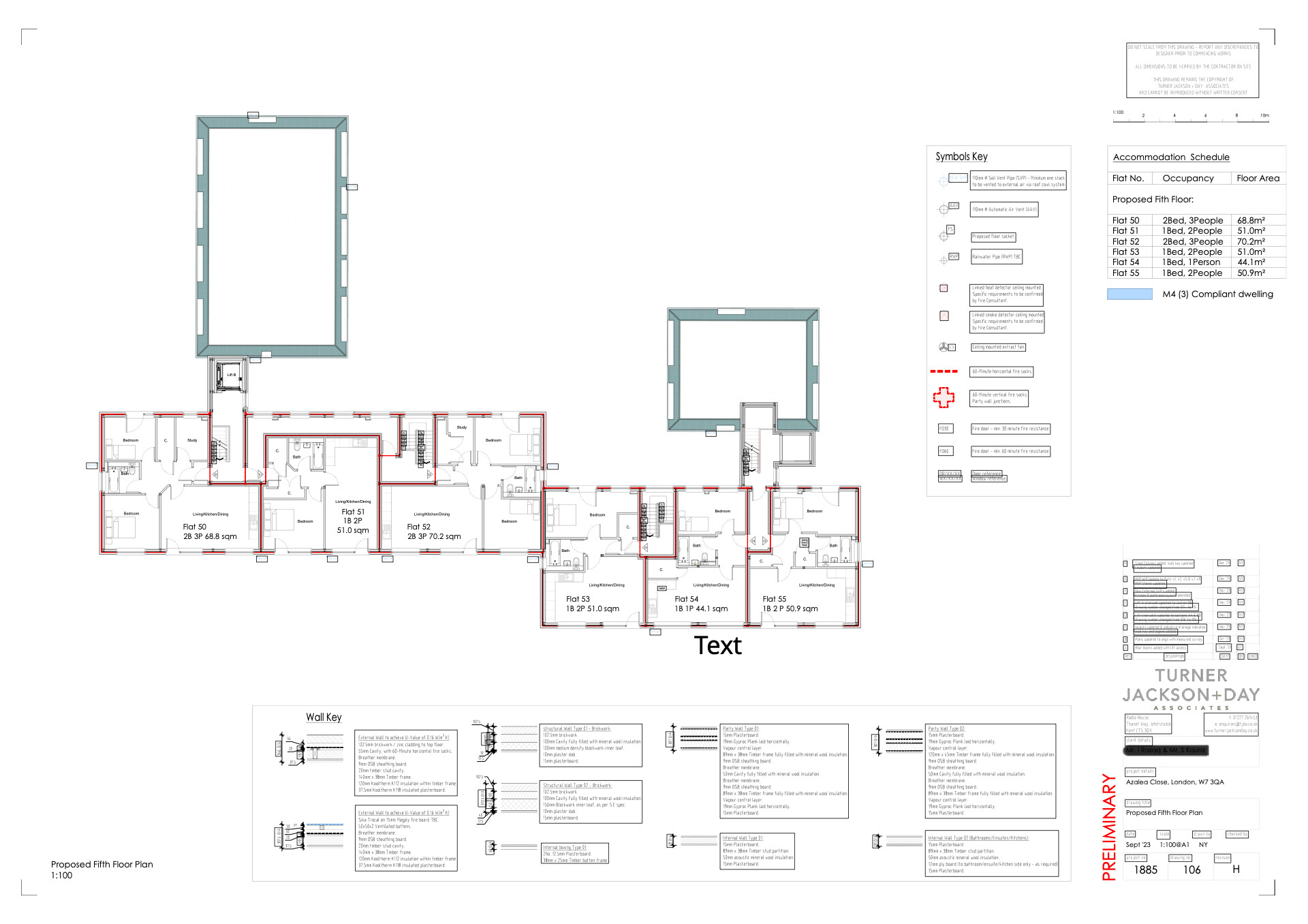
Azelea Close, London
Previous project
Next project